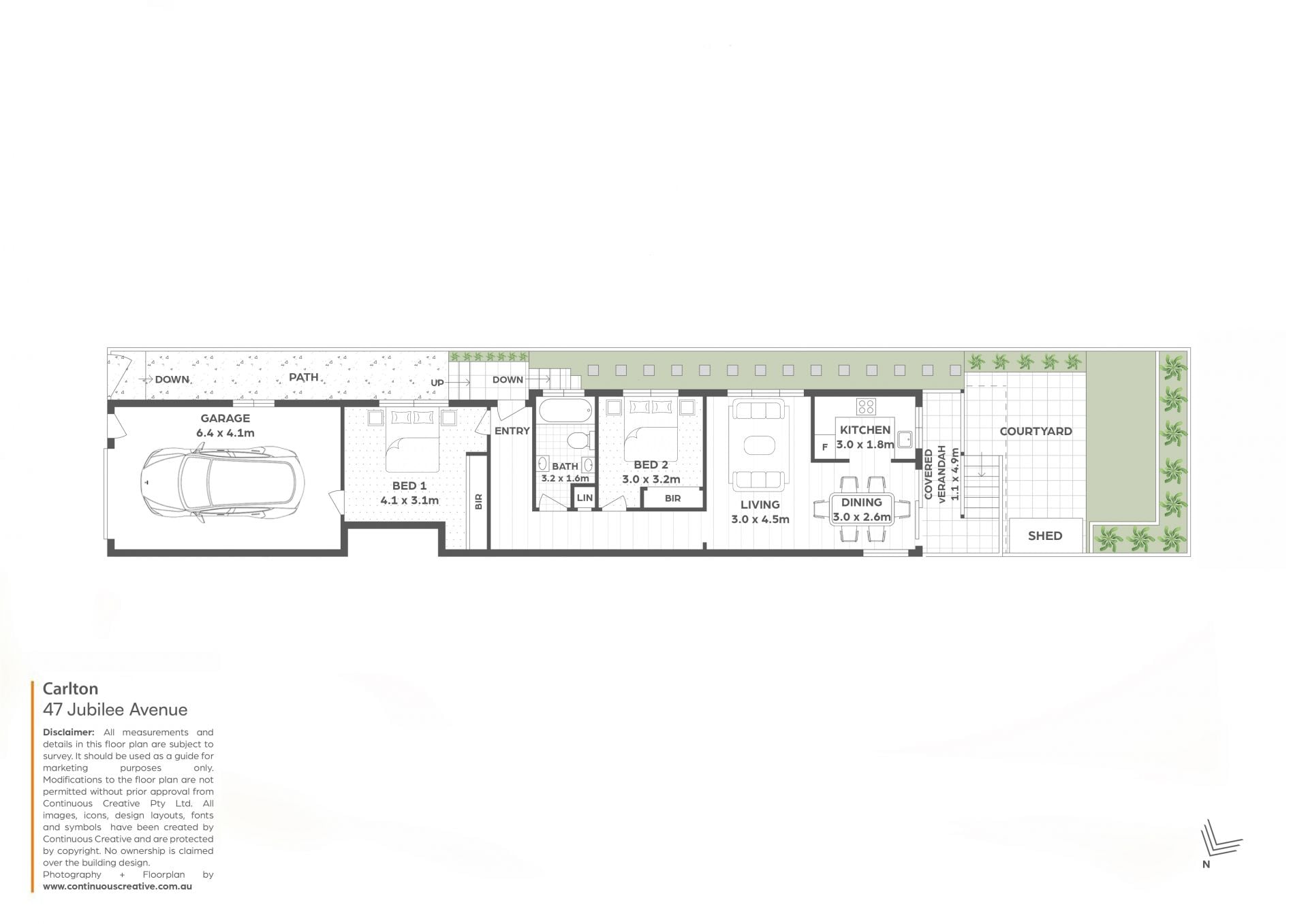
47 Jubilee Avenue, Carlton
$ 1,270,000
overview
-
1P2664
-
House
-
Sold
-
2
-
1
-
1
Description
Tranquil Living with a Contemporary Touch
Tucked away behind a leafy garden entrance, this charming 2-bedroom semi-detached house is a private sanctuary full of light, warmth, and character. With a seamless blend of modern upgrades and timeless features, it offers effortless indoor-outdoor living, stylish interiors, and a low-maintenance lifestyle – all wrapped in a secure, tranquil setting.
Beyond its prime location, the home welcomes you with a warm and light-filled interior. The open-plan living and dining area flows seamlessly to a modern, well-appointed kitchen – complete with a dishwasher – making it an ideal space for relaxed living or entertaining guests. The clever layout maximises every inch of space, with high ceilings, ceiling fans in the bedrooms, and polished timber floors adding charm and timeless appeal. Air conditioning ensures year-round comfort, while built-in robes in the bedrooms offer excellent storage.
Security shutters on all windows enhance peace of mind and privacy. Step outside to your own private retreat – a sun-drenched rear verandah overlooking a fully fenced courtyard and manicured garden, perfect for pets, young children, or quiet weekends at home. A single lock-up garage with internal access adds practicality and can double as a workbench area or extra storage. A garden shed provides additional space for tools or lifestyle gear.
For those seeking future growth, there's exciting potential to extend or add a second level (STCA) – further unlocking value in an already thriving pocket of Carlton. Whether you're starting out, slowing down, or investing wisely, this home offers a lifestyle of ease, style and opportunity in equal measure. Conveniently located just 600 metres from Carlton Station, 1.2km from St George Hospital and within easy reach of Kogarah RSL and St George Leagues Club, this home places transport, healthcare, entertainment, and everyday amenities right at your doorstep.
Highlights
• A modern kitchen and bathroom designed for functionality and style
• Open-plan lounge and dining filled with natural light – ideal for entertaining or unwinding
• Polished timber floors and high ceilings enhancing warmth and space throughout
• Private verandah leading to a fully fenced, low-maintenance courtyard – perfect for morning coffee or evening wine
• Single lock-up garage with internal access
• Scope to extend and add value (STCA)
• Moments to Carlton Station, St George Hospital, Kogarah RSL, Local schools & shops
Beyond its prime location, the home welcomes you with a warm and light-filled interior. The open-plan living and dining area flows seamlessly to a modern, well-appointed kitchen – complete with a dishwasher – making it an ideal space for relaxed living or entertaining guests. The clever layout maximises every inch of space, with high ceilings, ceiling fans in the bedrooms, and polished timber floors adding charm and timeless appeal. Air conditioning ensures year-round comfort, while built-in robes in the bedrooms offer excellent storage.
Security shutters on all windows enhance peace of mind and privacy. Step outside to your own private retreat – a sun-drenched rear verandah overlooking a fully fenced courtyard and manicured garden, perfect for pets, young children, or quiet weekends at home. A single lock-up garage with internal access adds practicality and can double as a workbench area or extra storage. A garden shed provides additional space for tools or lifestyle gear.
For those seeking future growth, there's exciting potential to extend or add a second level (STCA) – further unlocking value in an already thriving pocket of Carlton. Whether you're starting out, slowing down, or investing wisely, this home offers a lifestyle of ease, style and opportunity in equal measure. Conveniently located just 600 metres from Carlton Station, 1.2km from St George Hospital and within easy reach of Kogarah RSL and St George Leagues Club, this home places transport, healthcare, entertainment, and everyday amenities right at your doorstep.
Highlights
• A modern kitchen and bathroom designed for functionality and style
• Open-plan lounge and dining filled with natural light – ideal for entertaining or unwinding
• Polished timber floors and high ceilings enhancing warmth and space throughout
• Private verandah leading to a fully fenced, low-maintenance courtyard – perfect for morning coffee or evening wine
• Single lock-up garage with internal access
• Scope to extend and add value (STCA)
• Moments to Carlton Station, St George Hospital, Kogarah RSL, Local schools & shops
